O que é uma Planta Baixa e uma Vista?
Se você é um amante do design de interiores, ou está buscando entender do assunto antes de realizar a decoração da sua casa, já deve ter ouvido falar em planta baixa e vistas. O termo é, de fato, bem comum e faz parte de qualquer projeto de design de interiores. Mas, afinal, o que é planta baixa e uma vista? Espera, vou explicar!
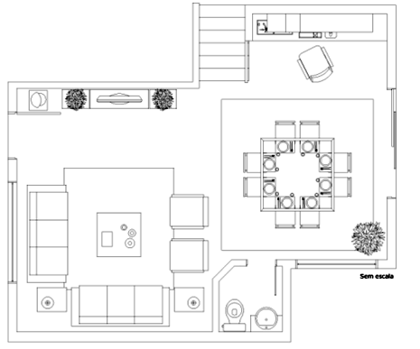
Planta Baixa
A planta baixa é um corte feito através de um plano horizontal imaginário situado em uma altura aproximada de 1,50 m. Dessa maneira, a porção da edificação acima do plano de corte é eliminada e representa-se o que um observador veria ao olhar do alto a edificação cortada.
Graficação
O desenho da planta deve conter traços fortes e médios bem caracterizados e deve conter também os equipamentos. Porque, ao olharmos para um quarto, por exemplo, devemos ter essa leitura perfeita com os equipamentos e mobiliários nele desenhados. Assim é também para os demais ambientes, podendo-se desenhar até alguns detalhes como pisos, tapetes e elementos de decoração.
Escala
As paredes, portas e janelas seguem uma proporção em relação ao tamanho real. As escalas mais comuns para projetos de decoração são de 1:50 e 1:25. Na escala de 1:50, por exemplo, cada centímetro da planta baixa será 50 vezes menor do que a realidade.
Plantas humanizadas
A planta humanizada serve para visualizarmos as propostas de arranjos (layout) para os ambientes, bem como suas proporções e circulação. Portanto, permite experimentar diferentes alternativas de distribuição dos móveis e também do fluxo de pessoas pelo local. Para isso, os espaços devem estar equipados com o máximo de elementos possíveis, como camas, cadeiras, mesas, objetos, cortinas, etc., de forma a facilitar, de fato, a compreensão.
Como montar uma planta baixa
- Tire as medidas pelo pé do rodapé, o comprimento e a largura da peça. As alturas são necessárias mais adiante, quando fizer as elevações.
- Tire as medidas de portas e janelas, pois precisam aparecer na planta. Geralmente, usa-se 0,15 m para o desenho de paredes internas e 0,25 m para o desenho de paredes externas.
- Represente as portas abertas, para mostrar o espaço que ocupam quando abrem e fecham.
- Represente as janelas na parede com traço mais fino. Entre os dois traços das extremidades, mais traços são feitos e representam a espessura dos vidros.
- Represente também o mobiliário com traço fino, devendo mostrar as projeções e demais itens constantes no projeto.

- Os armários que vão até o teto devem ter uma representação distinta dos demais (tracejado), pois não são vistos de cima, e sim em corte.
- Armários e acessórios embutidos, que não são vistos, devem ter uma representação de tracejado-ponto-tracejado.
- Quadros, espelhos e painéis em paredes aparecem só com a espessura e a largura do objeto.
- As cortinas aparecem como se fossem um trancelim. Se for de painel ou rolo, então é um traço apenas.
- Objetos muito pequenos (livros, enfeites, etc.) só serão representados em escala maior ou igual a 1:25.
- A iluminação de teto está fora do alcance do corte, portanto aparecerá pontilhada e é feita em plantas específicas de iluminação.
Ferramentas digitais e inteligência artificial na elaboração de plantas baixas
Se antes a elaboração de uma planta baixa dependia exclusivamente do papel quadriculado ou de softwares técnicos como AutoCAD, o cenário mudou bastante nos últimos anos. Ferramentas com inteligência artificial deixaram de ser uma tendência e passaram a ser a realidade do design de interiores, transformando a forma como profissionais e entusiastas desenvolvem seus projetos.
Plataformas como o Planner 5D, por exemplo, permitem criar plantas baixas em 2D e 3D combinando aspectos técnicos com visualização realista, e o próprio usuário pode construir digitalmente os cômodos, ajustar medidas e posicionar elementos de forma intuitiva. Mais do que isso, a ferramenta reconhece desenhos de planta e oferece sugestões de layout com base nos hábitos de uso dos ambientes, considerando circulação, iluminação e funcionalidade.
Para quem trabalha com projetos mais complexos, softwares como o Revit, da Autodesk, se distinguem pelo recurso de layout 3D para visualização de planta baixa, particularmente benéfico para construções de grande escala. Já ferramentas como o Foyr Neo permitem passar de uma planta baixa para uma renderização finalizada em poucas horas, sendo uma ótima opção para projetos com prazos mais curtos.
Outro recurso que ganhou espaço é a digitalização de plantas já existentes: é possível fotografar ou escanear um desenho em papel e transformá-lo em um formato digital com medições automáticas das áreas e paredes, utilizando algoritmos avançados de inteligência artificial.
Esses recursos não substituem o olhar técnico do profissional, mas agilizam etapas operacionais e permitem que o cliente visualize e aprove o projeto com muito mais clareza antes de qualquer execução. A IA, nesse contexto, tem um papel prático concreto: reduz erros, economiza tempo e torna a comunicação entre designer e cliente mais fluida.
Vale reforçar que a escolha da ferramenta deve levar em conta o nível de detalhamento necessário. Para projetos residenciais mais simples, plataformas gratuitas e intuitivas já atendem muito bem. Para obras de maior porte ou detalhamento técnico elevado, os softwares especializados seguem sendo indispensáveis.
Vistas

As vistas são desenhos muito importantes, complementares à planta baixa, com informações relativas às alturas dos elementos construtivos. São obtidas de forma semelhante à da planta baixa, porém com o plano de corte vertical. É construída a partir da planta baixa, de onde são transferidas as medidas da largura ou profundidade para o plano vertical.
No design de interiores, as vistas servem para visualizar detalhes de armários, detalhes em paredes e tetos. Porém, nem sempre elas são necessárias. Isso vai depender do que se tem a mostrar. Às vezes, a vista de um único móvel é mais importante do que todo o conjunto de uma parede.
Graficação
No que diz respeito à graficação, use o jogo de linhas, com suas diversas espessuras, demonstre as distâncias maior ou menor do fundo, bem como a posição em relação aos objetos. Na elevação, indique através de texturas os tipos de materiais que serão aplicados, arranjos de parede, cores, revestimentos, etc. Também pode-se inserir o memorial descritivo.
Para se fazer uma vista deve-se:
- Determinar qual dos planos se deseja mostrar.
- Desenhar a parede do fundo, sendo que a altura (pé-direito) deve conter, no mínimo, 2,50 metros.
- Desenhar a largura e a altura dos objetos, janelas e mobiliário em geral, além de quadros e adornos de parede que, eventualmente, poderão aparecer, bem como a distância entre si, determinadas conforme a planta baixa.
- Não esquecer também de indicar na planta baixa o ponto em que será vista a elevação. Esta marcação pode ser por setas identificadas ou ainda por uma linha que indique o sentido da elevação, dada pelo tipo linha-ponto-linha.
Circulação

Atende às necessidades de espaço para movimentação. Portanto, estude todas as atividades que normalmente se desenvolvem no ambiente para ter certeza de que as condições de circulação e os espaços necessários são satisfatórios. Boa parte da circulação o arquiteto e o engenheiro já resolveram durante a elaboração da planta arquitetônica, com a divisão das áreas em três partes distintas: Área Íntima, Área Social e Área de Serviços.
O ideal é não quebrar as circulações com mobiliário. Um método fácil é colocar flechas, assim fica claro onde as pessoas irão transitar. Após esse estudo, é possível que a mudança de alguma parede seja necessária. Os designers de interiores podem intervir na planta original, como abrir uma parede, mudar uma porta ou mesmo trocá-la de lugar, desde que o arquiteto e o engenheiro responsáveis sejam devidamente consultados.
Disposição do mobiliário na planta baixa
Uma distribuição eficaz do mobiliário significa que, além de poder circular livre e confortavelmente entre os móveis, também deve haver conforto para o uso deles, por exemplo, ao abrir portas e gavetas dos armários e ao afastar cadeiras em volta da mesa de refeições. São atividades que você deve considerar ao planejar o layout.
Deve-se, portanto, relacionar todos os itens a serem colocados no espaço. Então, tire as medidas do que já tem ou do que pretende comprar.
Existem duas formas práticas de resolver o problema da distribuição dos móveis. Uma é mais tradicional e usa papel quadriculado (veja o post sobre ele aqui). A outra utiliza uma ferramenta online 3D que pode ajudar a visualizar melhor. Há ótimas opções fáceis, rápidas de usar e gratuitas disponíveis atualmente.
Ao estudar as posições, verifique itens como proporção, circulação e equilíbrio entre as “massas” e a relação entre os espaços que estão cheios (ocupados) e os vazios.
Planta baixa, tendências e o projeto completo
Entender a planta baixa e as vistas é o primeiro passo para qualquer projeto de interiores bem resolvido, mas vale olhar também para o que o mercado tem exigido dos ambientes hoje em dia. Uma tendência forte nos projetos de interiores atuais é o uso de espaços multifuncionais, que unem lazer, trabalho remoto e convívio com a família em um único ambiente. Isso impacta diretamente o estudo de layout e circulação: o designer precisa prever, na planta baixa, que um mesmo cômodo pode assumir funções diferentes ao longo do dia.
A sustentabilidade também ocupa lugar de destaque nos projetos contemporâneos, com o uso de materiais e móveis que encontram novos sentidos nos lares e atenuam os impactos ao meio ambiente. Madeiras de reflorestamento, bambu e fibras orgânicas aparecem com frequência nas escolhas de revestimento e mobiliário, e todos eles precisam estar corretamente representados nas vistas e na planta humanizada para facilitar a aprovação do cliente.
Os projetos concluídos mais recentes revelam uma forte valorização dos materiais, com tons terrosos alcançados não apenas por meios cromáticos, mas também pelo uso de materiais quentes como madeira e terracota. Elementos como tijolos de vidro, concreto aparente e vigas expostas, que antes apareciam apenas em projetos industriais, hoje são detalhados nas vistas de interiores residenciais.
Saber ler e elaborar uma planta baixa com precisão, portanto, é mais do que um requisito técnico. É a base que permite ao profissional traduzir todas essas tendências em espaços funcionais e esteticamente coerentes.
Layout de interiores completos
Você sabia que o tamanho e a escala correta dos móveis podem melhorar ou prejudicar a aparência e a funcionalidade de um cômodo? Por isso, o planejamento é a chave para uma decoração bem executada!
Quer aprender a elaborar projetos de layout de interiores completos? O @ibdioficial desenvolveu este curso para você! Dá uma olhada! Clique aqui embaixo:
Curso Desenho, Leitura e Interpretação de Projetos de Interiores
